危険をともなう建設作業では、安全に作業を進めるために作業計画書の作成が法令で定められています。実際の記入例を使って記載すべき項目を確認しながら、わかりやすい作業計画書の書き方を学びます。また、作業計画書の作成が求められる具体的なケースについても解説します。
この記事はこんな読者におすすめ
- 作業計画書とはどのようなものか
- 作業計画書はどう書けばよいのか
- どんな場合に作業計画書が必要になるのか

資料請求はこちら
目次
1. 作業計画書とは
作業計画書とは、危険をともなう工事や作業において事前に「作業計画」を策定し、現場全体で安全な施工管理を遂行するための書類です。作業計画書が必要な工事や作業は労働安全衛生規則に定められており、過去には作業計画を定めず労働災害を発生させたとして事業者が書類送検された事例もあります。
建設業では墜落・転落災害に次いで建設機械・クレーンによる災害が多く、災害防止対策として作業計画書は重要視されています。ここでは作業計画書の記入例をもとに、作業計画書の正しい書き方と、安全衛生規則に定められた「作業計画が必要な作業」について解説します。

資料請求はこちら
2. 作業計画書の書き方と記入例
建設現場で使用される機会の多いブルドーザー、バックホー、ショベルローダーなどの車両系建設機械と移動式クレーンは作業計画書を書く機会が多く、ひな型となる書式を作成しておくと便利です。ここでは移動式クレーン作業計画書の記入例をもとに書き方を解説していきます。
移動式クレーンの作業計画書は安全衛生規則第66条の2に定められており、
- 移動式クレーンによる作業の方法
- 移動式クレーンの転倒を防止するための方法
- 移動式クレーンによる作業に係る労働者の配置及び指揮の系統
を記入することとされています。
書式例)移動式クレーン作業計画書

一般社団法人北海道建設業協会 労務研究会Webサイトから引用
機種・性能情報、運転者情報
使用するクレーンの機種・性能、クレーンの所有会社名と運転者名、保有資格(資格確認)を記入します。移動式クレーンの場合、吊り上げ荷重の重量によって資格の種類が異なります。
- 吊り上げ荷重1t未満⇒特別教育
- 吊り上げ荷重1t以上5t未満⇒技能講習
- 吊り上げ荷重5t以上⇒免許証

作業に関する情報
作業予定日時、クレーン使用会社名、作業責任者名、作業場所・内容、作業条件を記入します。

クレーンの能力と作業者、作業環境の情報
移動式クレーンの能力、玉掛と合図を担当する作業者名、合図の方法、地形と地盤強度の状態を記入します。

地盤の養生と安全対策
地盤の養生方法とアウトリガーの最大張出しの可否、吊荷下への立ち入り禁止措置の方法、風の対策として作業の中止基準と目安の測定方法を記入します。

クレーンオペレーターの確認事項と作業所確認欄
作業所名、計画打合せ日を記入します。オペレーター確認事項については、必ずクレーンのオペレーター自身が確認をおこない、チェックを記入します。また、作業計画書を作成したら、作業前に必ず元請が確認する必要があります。

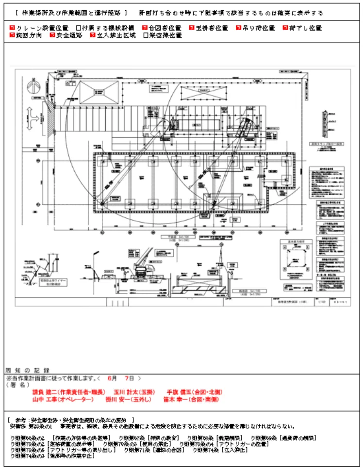
略図の書き方
作業計画に沿った作業現場の略図を作成し、作業計画書に記載します。作業計画で打ち合わせた、【作業場所及び作業範囲と運行経路】についてはもれなく記載します。略図は手書きや写真を張り付けるなどの方法もありますが、現場図面やイラストアイコンを使用してテンプレートを作っておくと便利です。

略図は平面図と側面図の併記が基本で、以下の項目を図中に示します。
- クレーン設置位置
- 付属する機械設備
- 合図者位置
- 玉掛者位置
- 吊り荷位置
- 荷下し位置
- 旋回方向
- 安全通路
- 立入禁止区域
- 架空線位置

略図を記載して作業計画書が完成したら作業関係者全員に周知し、日付を記入し、署名します


資料請求はこちら
3. 作業計画が必要なケース
労働安全衛生法では、以下の機械類を使用する作業が作業計画書の作成対象となります。また、車両系建設機械を使用する作業以外にも、架橋工事や解体工事など危険をともなう一部の作業は作業計画書の作成対象とされています。
車両系荷役運搬機械を用いる作業(労働安全衛生規則151条の3)
対象となる車両系荷役運搬機械:フォークリフト、ショベルローダー、フォークローダー、ストラドルキャリヤー、不整地運搬車、構内運搬車、貨物自動車など
車両系建設機械を用いる作業(労働安全衛生規則第155条)
対象となる車両系建設機械:
- ブルドーザー、モーターグレーダー、スクレーパーなどの整地・運搬・積み込み用機械
- パワーショベル、ドラグライン、トレンチャーなどの掘削用機械
- くい打ち機、アースドリル、アースオーガーなどの基礎工事用機械
- ローラーなどの締固め用機械
- コンクリートポンプ車などのコンクリート打設用機械
- ブレーカなどの解体用機械
ジャッキ式つり上げ機械を用いて荷の吊り上げ、吊り下げを行う作業(労働安全衛生規則194条の5)
対象となるのは動力を用いたジャッキ式吊り上げ機械で、主に大屋根や橋げたなどの重量物を吊り上げる工事に使用されます。
高所作業車を用いる作業(労働安全衛生規則194条の9)
外壁工事や内装工事で天井の作業をするときなどに使用される高所作業車が対象となります。
移動式クレーンを用いる作業(クレーン等安全規則66条の2)
トラッククレーン、ホイールクレーン、クローラクレーンなどの移動式クレーン全般が対象となります。
その他
ほかにも、以下の作業については作業計画や施工計画などの作成が労働安全衛生規則に定められています。
- ずい道の掘削の作業(労働安全衛生規則380条)
- 採石作業(労働安全衛生規則第400条)
- 建築物の鉄骨の組立て等の作業(労働安全衛生規則517条の2)
- 鋼橋の架設、解体、変更の作業(労働安全衛生規則517条の6)
- コンクリート造の工作物の解体等の作業(労働安全衛生規則517条の14)
- コンクリート橋の架設又は変更の作業(労働安全衛生規則517条の20)

資料請求はこちら
関連するお役立ち資料のダウンロード